AMPIO LOCALE COMMERCIALE

In vendita
Negozio
Venaria Reale
134.000 €
Descrizione
VENARIA - Nel cuore di Venaria, a pochi passi dal centro storico, proponiamo in vendita un locale commerciale di ampia metratura, ideale per diverse tipologie di attività.

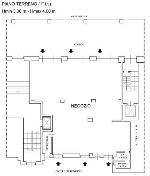
L’immobile si sviluppa su circa 150 mq complessivi, di cui 130 mq destinati alla zona vendita e 27 mq ad uso cantina/deposito, perfetti come spazio di supporto operativo o magazzino. Attualmente adibito a mini market, si presenta come una soluzione già pronta all’utilizzo, con arredi inclusi nella vendita, permettendo così un avviamento rapido senza ulteriori investimenti iniziali.

La presenza della canna fumaria rappresenta un importante valore aggiunto, rendendo il locale particolarmente interessante anche per attività nel settore food. Gli spazi interni risultano funzionali e ben distribuiti, facilmente adattabili a seconda delle esigenze imprenditoriali.

Completano la proprietà la disponibilità immediata e un comodo parcheggio esterno, elementi fondamentali per garantire praticità sia alla clientela che alla gestione dell’attività.

Una soluzione strategica e vicina ai principali servizi, ideale per chi desidera avviare o trasferire la propria attività in una zona dinamica e ben servita.
Caratteristiche principali
Codice:
V000834
Città:
Venaria Reale
Categoria:
Negozio
Spese condominiali:
1.000 € / anno
Locali:
1
Camere:
1
Bagni:
1
Mq:
157
Anno:
1965
Classe energetica:
F
486,41
Stato Immobile:
Buono
Grado:
Medio
Posizione:
Centro
Panorama:
Vista Aperta
Orientamento:
Ovest Est
Lati Liberi:
2
Arredi:
Arredato
Riscaldamento:
Autonomo
Tipo Riscaldam.:
Ventilconvettore
Tipo Impianto:
Aria
Fonte Energetica:
Elettrico
Acqua Calda:
Autonoma
Raffrescamento:
Split
Infissi:
Alluminio
Serramenti:
Buono
Persiana:
Tapparella Metallo
Pavimento:
Ceramica
Numero Vetrine:
Tre
Accesso Disabili:
Nessuna Barriera
Accesso interno disabili:
Pieno accesso
Accessori
Aria Condizionata
Canna Fumaria
Doppio Ingresso
Passaggio Automobilistico
Passaggio Pedonale
Ripostiglio
Mappa
via montello, 13 - Venaria Reale (TO)
Richiedi informazioni
Invia
Cookie preference