Rustico con Ampia SUL e Terreno

In vendita
Rustico/Casale
Piossasco
89.000 €
Descrizione
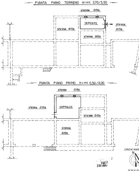
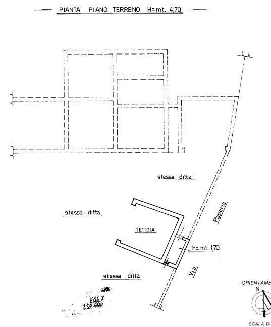
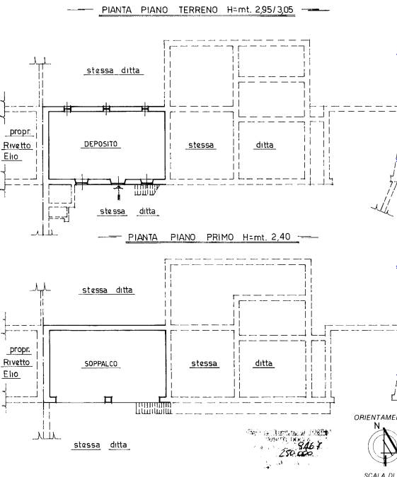
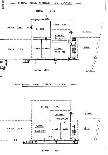
PIOSSASCO - In posizione tranquilla e ben esposta, proponiamo in vendita rustico completamente da ristrutturare, libero su tre lati, inserito in un contesto con ampi spazi e grande potenziale edificatorio.

La proprietà è già dotata di piano di recupero approvato attualmente scaduto, che consente lo sviluppo di oltre 200 mq abitativi, con una superficie utile lorda complessiva di circa 1000 mq, offrendo quindi un’opportunità concreta e immediata di valorizzazione.

Il terreno circostante, di oltre 1000 mq, garantisce spazio, indipendenza e possibilità progettuali interessanti, sia per la realizzazione di più unità abitative sia per una soluzione unifamiliare di ampia metratura.

Si tratta di un’operazione ideale per imprese costruttrici o investitori che desiderano sviluppare un progetto immobiliare con margini importanti, ma allo stesso tempo rappresenta una soluzione perfetta anche per chi sogna di realizzare una casa su misura, partendo da una base già approvata a livello urbanistico.

Un immobile con grandi potenzialità, pronto per essere trasformato in un progetto concreto.
Caratteristiche principali
Codice:
V000839
Città:
Piossasco
Categoria:
Rustico/Casale
Locali:
13
Mq:
1000
Anno:
1930
Classe energetica:
G
447
Stato Immobile:
Rustico
Grado:
Medio
Posizione:
Periferia
Panorama:
Vista Aperta
Orientamento:
Est Sud Ovest
Lati Liberi:
3
Giardino:
Privato
Arredi:
Non Arredato
Riscaldamento:
No
Accessori
Passaggio Automobilistico
Passaggio Pedonale
Mappa
via paperia, 32 - Piossasco (TO)
Richiedi informazioni
Invia
Cookie preference